Welcome To
SILVEr cliffs
Modern Living Amidst nature
Each neighborhood at Silver Cliffs offers its own unique landscape and lifestyle, from quiet mountain ridges to walkable village streets. Explore available lots to find the perfect setting for your next chapter, whether that means morning coffee with red-rock views or weekends spent exploring the best of Southern Utah.
Located just minutes from St. George, Silver Cliffs places you within easy reach of hiking and biking trails, championship golf, boating on Sand Hollow Reservoir, and the breathtaking scenery of Zion National Park. Here, every day brings a new way to live, move, and make memories outdoors.


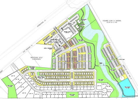
Development Location
Nestled at the entrance to St. George and Leeds, Utah, Silver Cliffs is a gateway master-planned community that captures the essence of Southern Utah living—where nature, design, and lifestyle meet on a grand scale.
Spanning multiple phases and landscapes, the development is thoughtfully divided into three distinct sections, each offering its own unique identity and purpose within the community vision.
Section A — Silver Commons
The Vibrant Town Center
Positioned along the gateway corridor, Silver Commons is the lively mixed-use heart of Silver Cliffs. Designed as a walkable community hub, this area blends higher-density residences with boutique retail, dining, and everyday conveniences. Residents will enjoy:
-
Townhomes, patio homes, and small-lot residences surrounded by parks and gathering spaces
-
A grocery and pharmacy anchor for easy access to essentials
-
Seven retail pads and outdoor plazas designed for connection and local business
Silver Commons is where neighbors meet, families gather, and life unfolds against a backdrop of Southern Utah’s natural beauty.
-
Section B — Silver Cliffs Residential & Resort Village
The Heart of Luxury Living
Stretching across the central foothills, Section B showcases rural-inspired single-family homes, estate lots, and a destination resort, all surrounded by preserved open space. Currently under construction, this area captures the refined yet adventurous spirit of the community.
Residents enjoy quick access to hiking and biking trails, scenic overlooks, and planned resort amenities that include:-
Luxury residential lots with panoramic views
-
Preserved natural corridors and open spaces for recreation and privacy
-
A destination resort envisioned to elevate the community’s hospitality and leisure offerings
Silver Cliffs’ Residential Village combines the elegance of high-end architecture with the timeless appeal of nature at your doorstep.
-
Section C — Silver Summit Estates
The Pinnacle of Elevation and Privacy
Set high against the red-rock ridges, Silver Summit Estates features expansive mountain-view homesites with direct access to Bureau of Land Management (BLM) recreation areas. This exclusive enclave is designed for those who seek unmatched views, seclusion, and space to explore.
Highlights include:-
48 mountain estate lots with sweeping vistas of Southern Utah
-
Over 20 acres of preserved terrain for hiking, equestrian, and biking trails
-
Plans for a 7,500-seat amphitheater, envisioned as a regional destination for music, culture, and community
Silver Summit represents the most elevated expression of the Silver Cliffs lifestyle—a perfect balance of serenity, adventure, and breathtaking scenery.
-
Section A — Silver Commons
The Heart of Connection
At the center of Silver Cliffs, Silver Commons brings together vibrant living, boutique retail, and walkable design. Townhomes, patio homes, and small-lot residences surround gathering spaces, parks, and cafes—all set against the stunning red cliffs of Southern Utah. This is where convenience meets community, creating a lively hub for everyday life.

Balanced & Visionary
The Silver Cliffs master plan is thoughtfully designed to embrace both community and connection to nature. On the left, Silver Commons serves as the lively town center, blending modern living with everyday convenience. On the right, Silver Summit rises into the red-rock hills, offering elevated estate lots surrounded by sweeping desert views. Together, they form the foundation of a lifestyle that celebrates both luxury and landscape.

“Silver Commons” – Left Section of Silver Cliffs
This is the vibrant mixed-use center of Silver Cliffs, featuring higher-density housing, boutique commercial space, and public gathering areas. The goal is to create a walkable, connected community surrounded by natural amenities and quick access to retail and dining. Silver Commons blends convenience and lifestyle — where everyday essentials, recreation, and social life come together in the heart of Southern Utah.
Townhome Units: 194
Patio Home Lots: 84
Small Lots: 44
Retail Pads: 7 (Each 4,800 SF)
Grocery/Pharmacy Pad: 25,000 SF of Buildable Space

“Silver Summit” – Right Section of Silver Cliffs
This is the Mountain Estate Lots area, offering direct access to BLM recreation and panoramic views from every angle. Designed for those who value space, privacy, and adventure, Silver Summit is where luxury meets the landscape.
In addition to the mapped lots, the community includes over 20 acres of preserved terrain with plans for trails, picnic areas, and scenic overlooks for residents, hikers, and equestrians alike.
Number of Mountain Estate Lots: 48
Additional Preserved Land: 20+ acres
Community Amenity (Planned): Trails with picnic tables, viewpoints, and multi-use recreation access

Section B — Silver Cliffs Residential Village
Luxury Living Rooted in Nature
Nestled between open desert and elevated ridgelines, Section B offers single-family homes and estate lots inspired by the landscape itself. Thoughtful design, spacious homesites, and preserved natural corridors make this area the perfect blend of refinement and outdoor freedom. Here, every view feels like a private retreat.

Section B — Destination Resort
Resort Living, Redefined
At the heart of Section B lies the Silver Cliffs Destination Resort—a premier retreat designed to celebrate the spirit of Southern Utah. Blending luxury accommodations, wellness experiences, and panoramic desert views, this destination invites guests and residents alike to relax, recharge, and reconnect with nature in style.



Section C — Silver Summit Estates
The Pinnacle of Elevation and Privacy
Perched high above the valley floor, Silver Summit Estates offers expansive mountain-view lots for those seeking peace, space, and breathtaking scenery. With direct access to BLM recreation areas and future plans for a 7,500-seat amphitheater, this section defines elevated living—both literally and figuratively.
